River’s Edge Lot 40 – The Hemlock – Tremonton, Utah

About This Home

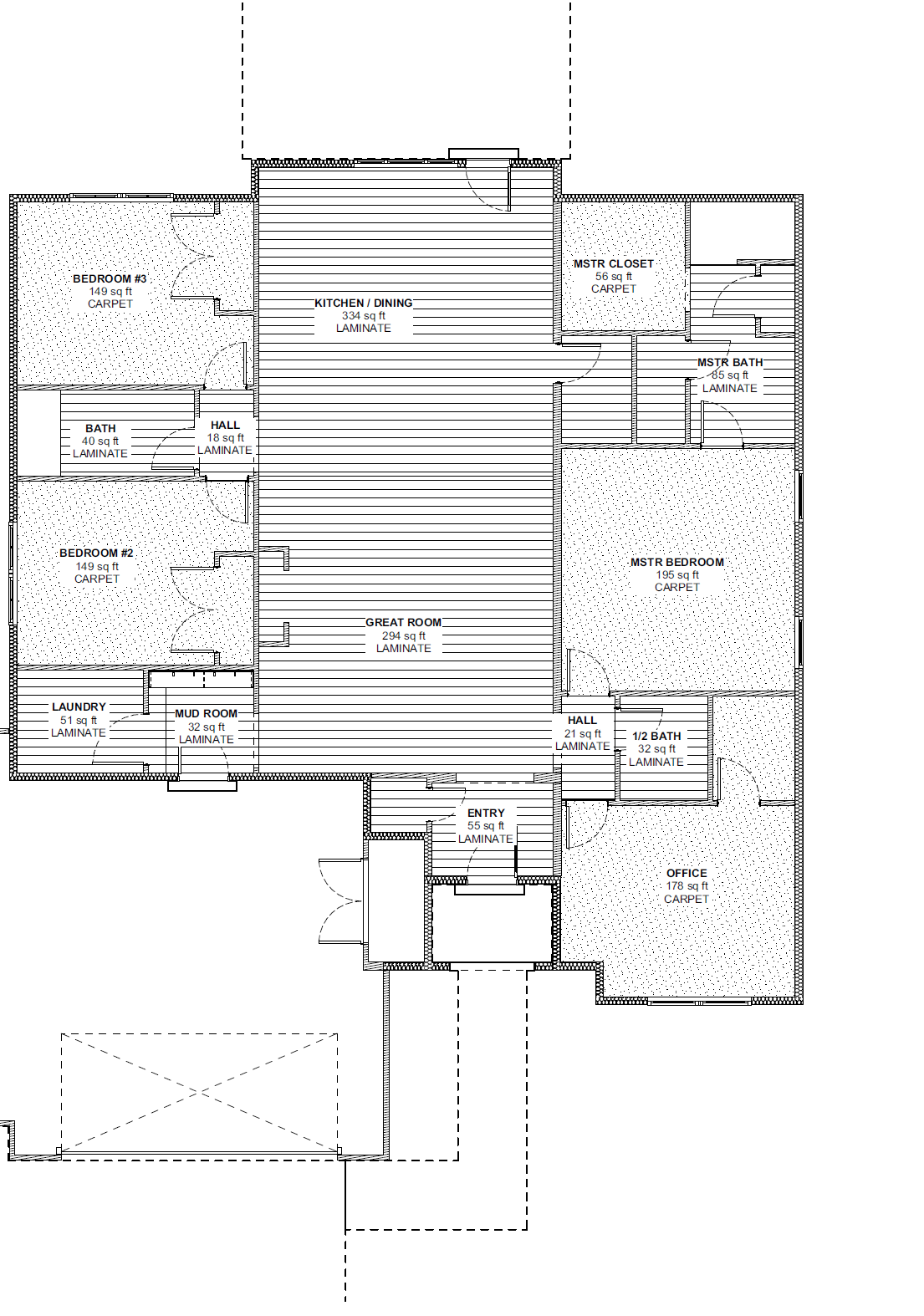
The Hemlock is a thoughtfully designed single-story, step-free home that combines comfort, accessibility, and smart use of space. This 4-bedroom layout offers a seamless flow between the living, dining, and kitchen areas, creating an open and inviting atmosphere perfect for everyday living and entertaining. The step-free design makes the home easy to navigate, while the well-planned bedroom layout provides privacy and flexibility for families, guests, or a home office. With quality craftsmanship and a layout that simply makes sense, the Hemlock delivers single-level living at its best.

Gallery